Facing Direction of a Home
- shannon hong
- Oct 18, 2019
- 5 min read
Which direction should your home be facing? Read this before answering! A new perspective on the direction a home should face.

If you were shopping for a new home, and I asked you, "What is the ideal direction for your home to face?" what would you say?
In my experience, I’ve heard a lot of “not sure” and “south.” Why south? Because it’s believed to provide the most sunlight, meaning a warmer and brighter home. Is that true? Somewhat, yes, but not entirely.
Every home is unique and there are so many things to consider. Type and structure of the home, interior layout and architectural features, and even what is outside the home can all make a big difference.
Let’s start by understanding the basics first, then we can look deeper into the details of each home.
The Basics
The facing direction of a home is closely connected with the way sun exposure will affect the home. More exposure means more natural light and heat in the home. Windows are the main distributors of both light and heat. Walls and roofs will also transfer in some heat.
How to Determine the “Facing Direction” of a Home?
House: The direction the front door or front of the house is facing.
Condominium/Apartment Unit: The direction the windows are facing.
How Sunlight from Each Direction Affects Spaces
East: Extreme sunlight in the morning, moderate light in the early afternoon, little light until sunset.
West: Little sunlight in the morning, moderate light in the early afternoon, extreme sunlight until sunset.
South: Moderate sunlight for most of the day until sunset.
North: Little sunlight for most of the day until sunset.
Note: In this post we are not considering:
Any artificial sources of light or heat in the home (light fixtures, window coverings, and HVAC systems)
Any cultural theories such as Vastu Shastra or Feng Shui
Now, let’s take a look at some examples to get a better understanding of the way the facing direction of a home can affect it. We will look at houses and condominiums separately. Why? A house will get sun exposure from multiple directions – up to all four sides plus the roof. By contrast, a typical condominium unit gets exposure from only one direction, or two if it’s a corner unit.
Condominium
(As in a regular single storey unit in a building, excluding penthouses and condo townhouses)
In the case of a condo, facing direction affects the home in a quite straightforward way. Let’s look at these two floorplans below, showing typical “one-direction” condo units. The first unit, #3, is a west facing home. The second unit, #5, is a north facing home. What can we expect from this?
The west facing unit will be relatively darker and cooler in the morning, but sometime in the late afternoon it will become extremely bright and warm until the sunset. If you need a nap, the den area maybe useful. On the other hand, the north facing unit would stay on the darker and cooler side for most of the day. That could be great for the boiling hot summer season!
Corner units are often preferred for better exposure. Look at these floorplans below. (You may need to tilt your head.)
The first floorplan of unit, #4, is of a northwest facing home. That means relatively darker and cooler mornings from both directions, extremely bright and warm afternoons and early evenings from the west. However, the bedroom (facing north only) could stay cooler for most of the day.
The second floorplan, #8, faces southeast. Overall, the home will be moderately bright and warm throughout the day, but whoever sleeps in the second bedroom will need to be a morning person! The sharp sun rays from the morning sunrise could be a powerful alarm clock.

At first, it seems quite simple to understand how exposure affects a condo, but there are many other factors that must also be considered as they can change the scenario dramatically.
Which floor is the unit located on? Lower floor units tend to receive less exposure.
Are there enough windows? Are the windows floor-to-ceiling?
Are there any obstacles blocking the light? Trees, fences, other buildings, etc.
Are there any upcoming developments in the area? Always keep the future in mind when buying a home!
House
As we all know, a house can come in many different forms, from a single-storey bungalow to a multi-storey townhouse. Different shapes, heights, and layouts are available in today's market. That is why we can’t simply rely on the house’s facing direction to tell us how bright or warm the house is going to be.
Let's look at this floorplan of a simple bungalow. Unlike a condo, the facing direction of a house is determined by the direction the front door is facing. Let's say this house is facing south.
Even though this house faces south, the majority of the interior space is exposed from the other three directions. The living area is facing west. The kitchen and the master bedroom are facing north. The second bedroom faces east. So, in this case, the bungalow does not truly benefit from facing south.
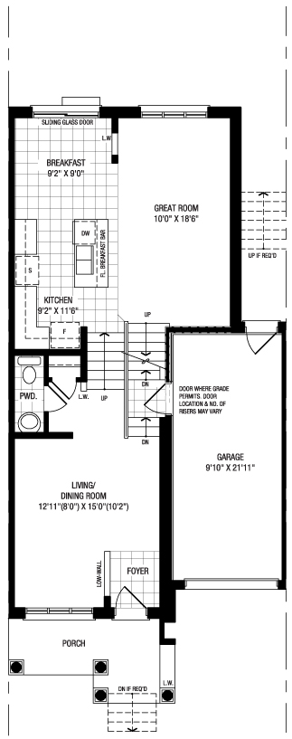
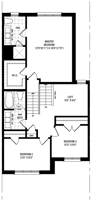
Next, take a look at the two-storey townhouse shown below.
Let's say that this townhouse faces north. There are no exposures from west or east because this house is in the middle of a row townhouse complex. The living area and the two smaller bedrooms on the second floor will stay on the darker and cooler side most of the time (north). Meanwhile, the kitchen area and the master bedroom will be on the brighter and warmer side (south).
The Bottom Line
Rather than considering only the direction the entire home is facing, we should look at what direction specific parts of the home face.
A new home might break down to something like this:
East facing master bedroom (wake up to a beautiful sunrise)
West facing living room (enjoy sunbathing after work)
South facing backyard (green thumb utopia)
North facing office (stay cool and focused)
But we’re not done yet! Don't forget, there are still more things to consider that can impact how an exposure affects the home.
Exterior & Surrounding Area
Always observe what’s outside the house. How much space is there between neighboring houses? It’s not uncommon nowadays to find a beautiful large window that exists only to showcase the brick wall of the next house. Are there trees and bushes around the windows? (Some municipalities have restrictions against removing established trees.)
Imagine you have found the perfect house with a beautiful south facing garden only to discover that there's a tall apartment building right behind it. Blocking all that precious light... no Bueno!
Architectural Features
More windows aren’t always better. Plenty of natural light sounds awesome, but consider the extremely hot and cold months. Unless the windows are those ultra-high efficiency insulated ones, they will make your home even hotter or colder. Utility bills will also be sky high!
Perhaps you think you’ve found the perfect house with that cool north facing office space you want on the upper floor, but later you realize that there is a large skylight window right above it… oopsie.

Just like each one of us, every home is unique. That’s what makes home hunting so exciting! Also, I admit, quite challenging. Truth is, people often pay very little attention to the facing direction when looking for a home. Perhaps there's already too many other things to worry about, those "way more important” things, such as mortgage, budget, location, and overall aesthetics.
But keeping in mind these “little details” relating to exposure and facing direction isn't a bad idea. They are the details can add up to affect just how comfortable your home is for you, and how much you enjoy it. At the end of the day, a home that keeps you happy and supports what you love to do is a good home.
























Comments